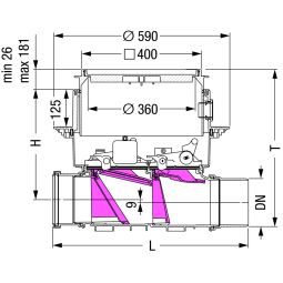
Clapet anti-retour motorisé KESSEL Staufix-FKA-confort, plancher, noir
kit complèt pour une installation sous sol avec une surface noir, pour eaux usées et fécales, Art.-Nr.: 100058679a Déscription
1 / 2
Prix
en € /
TVA incluse pièce(s)
4 Variantes
2814
,
95
€